Bestrong
AQUINCUM
AQUINCUM
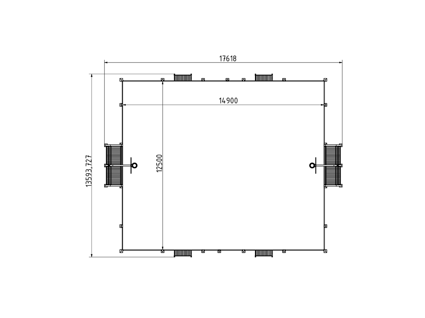
L'Aquincum è un'area sportiva all'aperto ampia e spaziosa, costruita per facilitare una moltitudine di sport tra cui calcio, basket e tennis. Circondata da una robusta recinzione in acciaio anti-vandalo con un'altezza di 3000 mm, garantisce un ambiente sicuro e stabile per vari sport.
Lunghezza |
17618 millimetri
|
Larghezza |
13593 millimetri
|
Area necessaria |
|
Capienza con tempi di riposo | 1:1 |
Altezza recinzione |
3000 mm |
HIC | - |
Codice prodotto |
4-3-032
|
Certificato | EN15312 |
Fascia d'età | 3 + anni |
Capienza | 20 |
Progettato per | Multisport |
I nostri campi polivalenti sono progettati e fabbricati in conformità
alla norma EN15312 per l'installazione permanente di attrezzature
all'aperto.
Materiali di costruzione:
1) I tubi degli attrezzi sono realizzati in acciaio da costruzione S235(*).
2) La copertura dei tubi per la protezione della superficie avviene con una prima pulizia per la preparazione, seguita dalla copertura con una sostanza chiamata Primax Protekt - Cromato di Zinco, alla fine viene applicato lo strato di copertura finale, in uno spessore di 65-90 micron (OPZIONALE)
3) zincatura a fuoco seguita dalla verniciatura a polvere
Nel caso di aree adiacenti al mare, trattandosi di luoghi con alta percentuale di umidità e sabbia, si utilizza questa tecnologia perché fornisce una protezione globale (sia internamente che esternamente) contro la corrosione.
Comprende:
- Progetto esecutivo del parco e delle fondamenta
Non comprende:
- Pavimentazione
- Installazione
- Fondamenta
- Trasporto
CONDIVIDI






